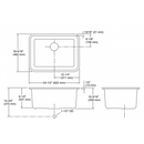
Kohler K-28000-CM1 Cairn™ 27-1/2" undermount single-bowl kitchen sink

KohlerSKU: K-28000-CM1

Note:
This is a genuine parallel import item
Price:
Sale price$4,654

You may also like

Recently viewed